网站首页
视频中心
产品中心
灶具系列
蒸煮烤系列
制冷设备系列
不锈钢调理设备
电器、食品机械系列
开水器系列
烟罩通风系列
西厨设备
厨房小件
电磁灶系列
案例图库
学校
酒店
社会餐饮
国企单位
设计方案
CAD图纸
效果图
关于我们
公司介绍
厂区展示
荣誉资质
施工管理
新闻资讯
公司新闻
行业资讯
常见问题
联系我们
13540224040 / 028-86262999
您暂无未读询盘信息!
请您登录网站后台查看!
当前位置:
首页
>
设计方案
>
CAD图纸
返回
设计方案
- sjfa -
CAD图纸
-
中铁西南国际物流
-
中融安保
-
长城开发
-
新津高中
效果图
-
烹饪教学实验室效果图
-
赛特厨具效果图
-
赛特厨具效果图
-
赛特商用厨房设备
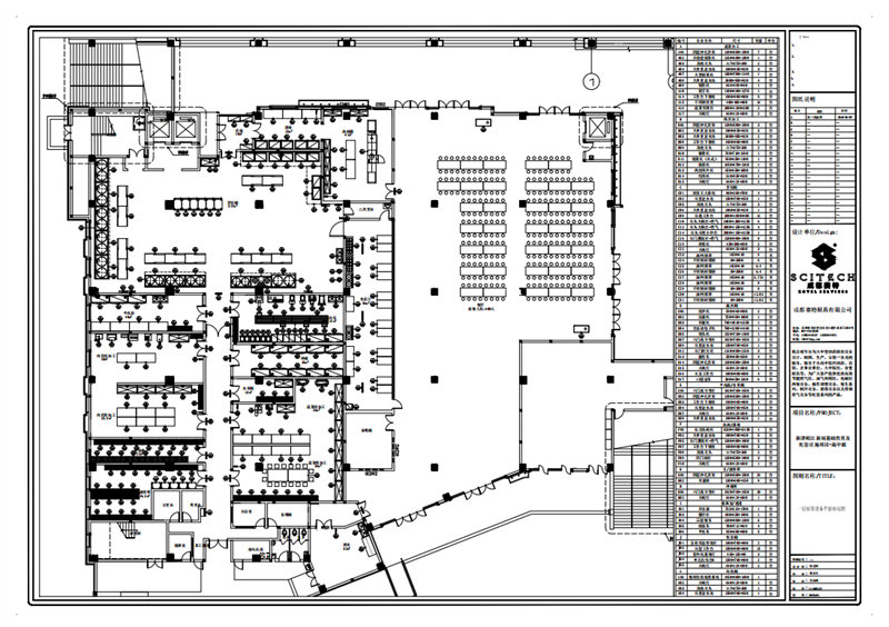
新津高中
所属分类:CAD图纸
产品介绍:
推荐产品
星越双炒双温灶
星越双炒单温灶
田字格四眼煲仔炉
我要询价
联系我们
返回列表
产品描述
【全文完】
此内容DOC下载
此内容PDF下载
←
西南民族大学
长城开发
→
热门产品
星越双炒双温灶
星越双炒单温灶
田字格四眼煲仔炉
明档电磁平面炉
明档电磁煲仔炉
明档自动旋转电磁煎包炉
明档电磁炖灶
沸腾型电热开水器
自滤式一开双温开水器
返回顶部